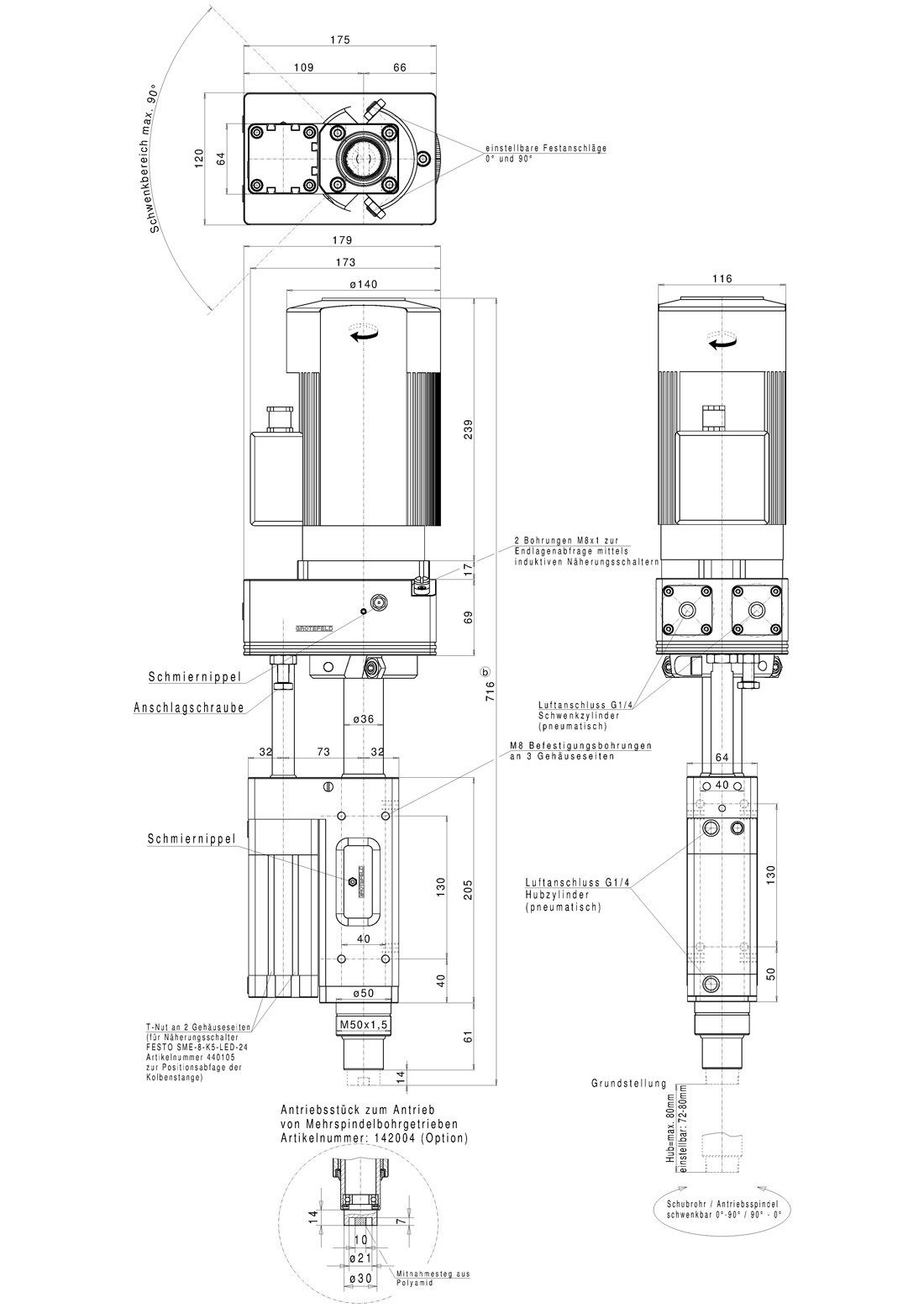
DVM050 系列的 GROTEFELD 旋轉裝置可將帶有夾緊環的 GROTEFELD 裝置旋轉最多 90°(C 軸)。旋轉運動以氣動方式進行;角度可以通過末端擋塊進行調整。
單元的行程為 80mm(Z 軸),可使用止動螺釘減少行程。
100Hz 時的最大速度為 5,600 rpm。
安裝選項:
為了固定旋轉單元,外殼的 3 側各有 4 個螺紋孔 (M8)。也可以將單元固定在 50 毫米的孔中。為此需要使用鎖緊螺母 M50x1.5(可選)。
注意:電機設計用于變頻器運行。
可根據要求提供各種變體!



安德魯信重工江蘇有限公司總代理
地址:江蘇省江陰市澄江東路3號
電話:0510-86199978 86199979
傳真:0510-86199980
郵箱:sales@andrewen.com
網址:www.27068.cn





2384326522